.

.

Close

AS-BUILT DRAWINGS

Our as-built drawing provides a detailed blueprint of the building and the land around it as it exists today. The drawings show the dimensions and location of all elements of the home. These drawings are derived from the measurements taken on-site and lay the groundwork for record documentation, future space planning, construction remodels, alterations, additions, or new construction. The typical documentation developed includes a:

Site plan showing the building footprint, other major detached structures, physical lot boundaries, walls, fences, permanent hardscape elements, major trees, and visible utilities.

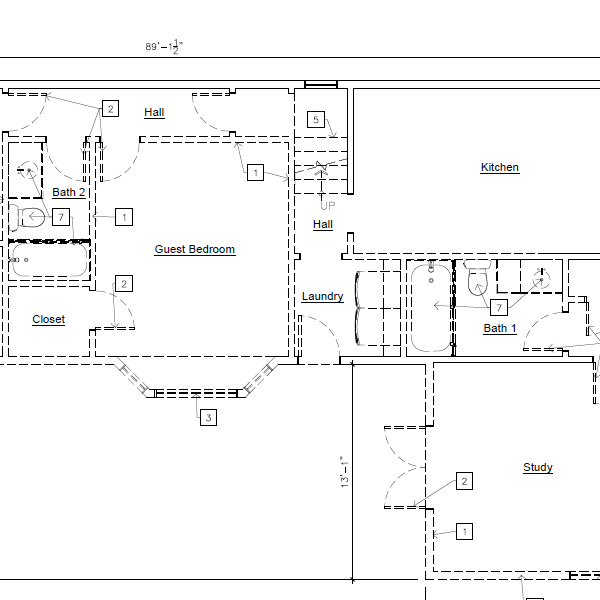
Floor plan
which is fully dimensioned and includes all exterior and interior walls, windows, doors, openings, exposed vertical columns, stairs, major built-in cabinetry and counters, major appliances, plumbing fixtures, ceiling and floor heights, and room labels.

Exterior elevations which include the vertical face of the building's exterior from the finished grade to the top of the structure. The elevations include doors, windows, roof, trim, attached posts, steps, balconies, and other visible elements.

Measured Drawings
More examples:

SCHEMATIC DESIGNS

Schematic Designs are in essence, new design concepts. We use Chief Architect software to create clearly defined, feasible design concepts and to present them in a form that is easily understood. The feasibility of the construction project is mostly contingent upon your budget and items required to obtain building permits. The typical documentation includes a:

Site plan showing the new building footprint, other major detached structures, physical boundaries, walls, fences, permanent hardscape elements, major trees, and visible utilities.

Floor plan which is dimensioned and includes all exterior and interior walls, windows, doors, openings, exposed vertical columns, stairs, major built-in cabinetry and counters, major appliances, plumbing fixtures, ceiling and floor heights, and room labels.

Exterior elevations which include the vertical face of the building's exterior from the finished grade to the top of the structure. The elevations include doors, windows, roof, trim, attached posts, steps, balconies, and other visible elements.

3D renderings.

SCHEMATIC DESIGNS
More examples:

DESIGN DEVELOPMENT

Our Design Development process takes a final design concept and refines it into a precise, coordinated set of construction drawings, also known as construction documents or blueprints. The blueprints cover specific details of the project. It’s at this stage that the 3D renderings undergo a more photo-realistic quality and the overall presentation becomes clear. It’s also the stage when the consultants, including designers, architects, engineers, and builders are on-boarded, if needed. (Additional fees apply for consultants). The typical documentation includes a:

Title sheet giving a summary of the project to include a sheet index, scope of work, lot information, area calculations, general notes, and project location map.

General notes regarding the project including building code requirements, door and window requirements, energy compliance, and special inspections.

Site plan showing the building footprint, other major detached structures, physical lot boundaries, walls, fences, permanent hardscape elements, major trees, and visible utilities.

Floor plan which is dimensioned and includes all exterior and interior walls, windows, doors, openings, exposed vertical columns, stairs, major built-in cabinetry and counters, major appliances, plumbing fixtures, ceiling and floor heights, and room labels.

Exterior elevations which include the vertical face of the building's exterior from the finished grade to the top of the structure. The elevations include doors, windows, roof, trim, attached posts, steps, balconies, and other visible elements.

Cross sections which show the vertical plane revealing the finished floor to the top of the ceiling including walls, windows, doors, floors, ceilings, and roof.

Roof plan which includes a roof outline, valleys, hips, ridges, chimney, skylights, pitch, and other major roof elements.

Door and window schedule.

Details (Typically Provided by Architect/Engineer).

Reflected ceiling plan which shows elements within six inches of the finished ceiling looking upward, including lighting, vents, attached fixtures, soffits, trays, coffers, skylights, exposed beams, and ceiling heights.

Interior elevations which include the vertical face of the interior from the finished floor to the ceiling, including elements attached to the wall.

Electrical layout which includes outlets, switches, data jacks, panels, meters, lighting, and permanent electrical fixtures, and equipment.

Plumbing layout which includes a layout of the fixtures and equipment.

3D renderings.

Design development
More examples: